808-810 Santa Fe Drive, Denver, CO

SOLD! Retail/Office Building in Heart of Denver’s Art District on Santa Fe

Type Building Size Lot Size Year Built Zoning Sale Price Close Date
Retail/Office 2,423 SF 2,491 SF 1890/2018 C-MS-5/td> $1,200,000 September 27, 2024

808-810 Santa Fe Drive offers an exceptional opportunity for an owner/user or investor to become a part of Denver’s thriving Art District on Santa Fe.

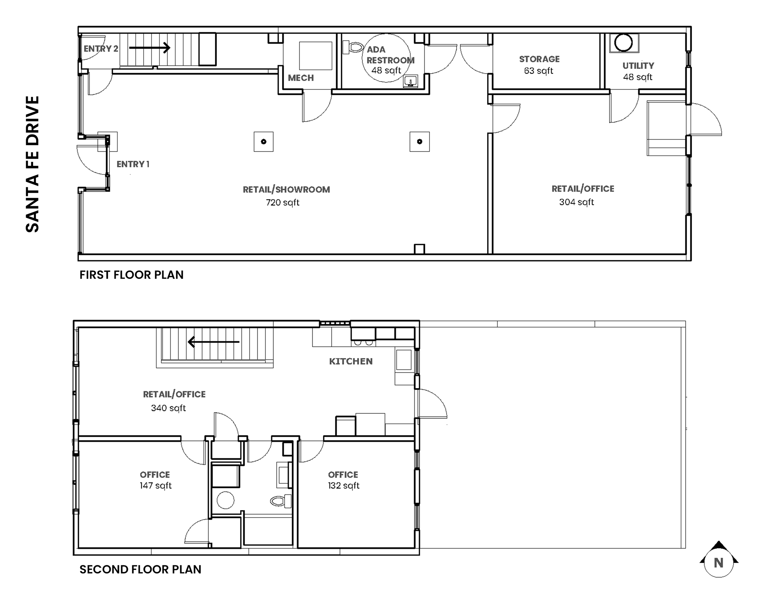
The 2,423-square-foot building comprises two levels, each with its own address (808 and 810 Santa Fe) and private entry point. If preferred, both levels can be accessed through the main storefront.

Constructed in 1890, the entire building was expertly renovated between 2015 and 2018. Upgrades include significant improvements to all infrastructure, including the storefront and electrical, mechanical, and plumbing systems. A new roof was installed in 2024, and each floor has a separate HVAC unit and controls, and a dedicated water heater.

The street-level space features a spacious, open-concept floor plan with high ceilings and upgraded LED lighting. The sizable front area includes access to multiple storage spaces and a basement of approximately 300 square feet. It includes an ADA-accessible restroom with modern finishes. The street-level space is currently home to a thriving art gallery (lease expiring in June 2025).

Also, on the first level, a secondary space features built-in cabinetry and access to another storage area with a utility sink and mechanical room. A back door leads to the private gated parking area, which can accommodate four or more vehicles in tandem.

The second level is ideal for an office, creative studio, or live/work scenario. The space offers a full kitchen with gorgeous modern cabinetry and updated appliances, a beautiful common area, two private office spaces or bedrooms, a bathroom with walk-in shower, a washer and dryer, and plenty of storage. Off the kitchen, a large rooftop area with sweeping views of downtown Denver is primed to be an incredible outdoor living space with a recently installed safety railing.

Read about the Transaction

Listing Highlights

  • Private, gated parking lot

  • One-of-a-kind mural installed in the parking area

  • 92 Walk Score - “Walker’s Paradise”

  • Over 10,000 vehicles pass the site each day on Santa Fe Drive

Welcome to the Art District on Santa Fe

The Santa Fe Drive corridor stretches from Alameda Avenue to the north, 13th Avenue to the south, and Kalamath to Inca from west to east. The area is a vibrant destination within Denver, comprised of a unique mix of art galleries, independent shops and retail, bars and restaurants, theaters, offices, cultural institutions, and residential developments.

Artists, designers, and creative enterprises live and work in the area. Santa Fe Drive also connects residents to essential neighborhood amenities and destinations, including parks, schools, cultural facilities, employment, and transit stops and stations.

The arts scene makes it a popular destination, particularly on First Fridays — a celebration of the arts with open galleries and large groups of people wandering in and out of galleries and restaurants on foot along the corridor.

Santa Fe is also a vital corridor within the Denver transportation network, providing access to downtown, the Auraria Campus, La Alma/Lincoln Park, and surrounding neighborhoods via US-6 and I-25. It is a critical link between downtown, 6th and 8th Avenues, and I-25, providing connections for people in the surrounding neighborhoods and the greater Denver community.

Square footage sourced from Denver County Assessor | Sale completed by Montana Rae while practicing at Henry Group Real Estate

 

Searching for a commercial property?

Call to discuss your requirements.


 

Montana Rae,

Principal

CALLTEXTEMAIL

 

Previous
Previous

1140 N Speer Boulevard, Denver, CO

Next
Next

300 Santa Fe Drive, Denver, CO