Denver Community Acupuncture | 4251 Kipling St, Wheat Ridge, CO

LEASED! Acupuncture & Wellness Office Overlooking Clear Creek

Type Space Size Year Built Zoning Average Rate Initial Term Close Date
Office 1,967 SF 1981 C-1 $22.50/SF/YR FSG 7 Years July 29, 2024

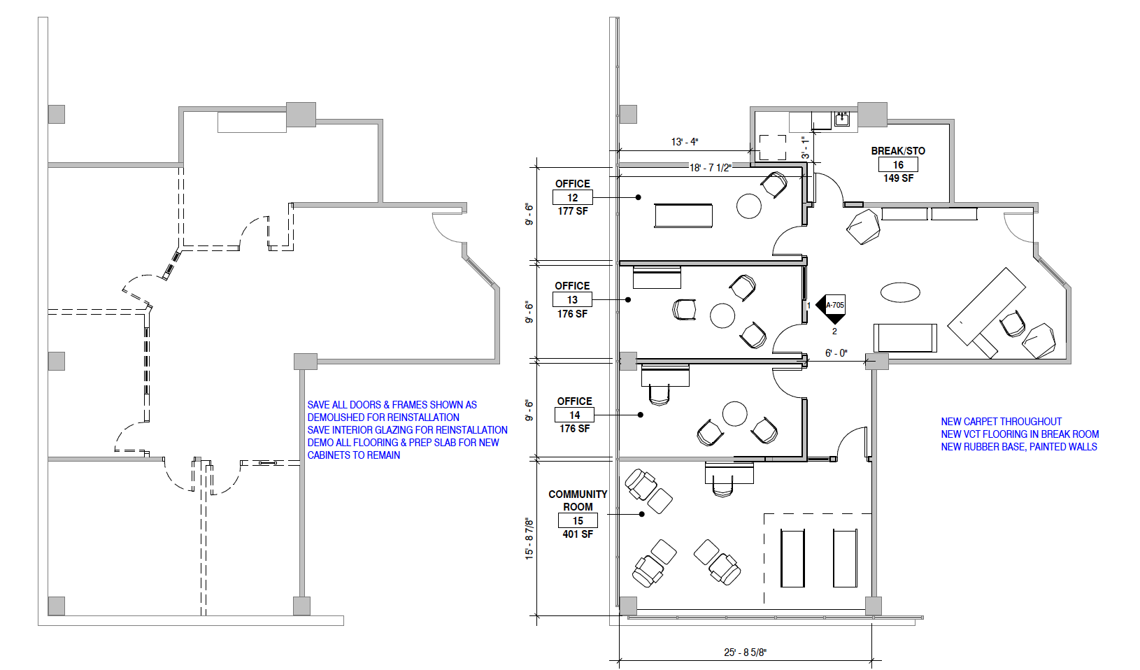
The office suite at 4251 Kipling Street, Suite 310 in Wheat Ridge has been leased on a 7-year FSG term to Denver Community Acupuncture, led by Kate Barry and Adrienne Kam.

Located on the third floor of Clear Creek Office Park at I-70 and Kipling Street, the 1,967 SF suite overlooks trees, mountains, and Clear Creek below. The building has surface parking and a tenant mix that includes other wellness practitioners.

The tenant provided layout revisions, which the landlord completed with new walls, refreshed finishes, and lighting throughout.

Denver Community Acupuncture has served Denver since 2010, offering community-style acupuncture alongside cupping, Chinese herbs, naturopathy, B12 injections, massage, and psychotherapy. The women-owned clinic operates on a sliding-scale, group-treatment model focused on making quality acupuncture and wellness care accessible to a broad patient base.

The relocation followed the sale of the clinic's longtime LoHi location. With a loyal patient base built over more than a decade, the team chose a more intimate west-side setting for the next chapter.

Read About the Transaction →

Transaction Highlights

  • Community-supported acupuncture and holistic health clinic serving Denver since 2010

  • Relocation from long-tenured LoHi location following ownership change

  • 1,967 SF suite in Clear Creek Office Park with mountain and creek views

  • 7-year initial term on Full Service Gross basis

  • Landlord-funded layout modifications and finish refresh

  • Women-owned practice with established clientele

Welcome to Wheat Ridge

Wheat Ridge sits immediately west of Denver along the Clear Creek corridor, with I-70 running across its northern edge. The Kipling Street commercial stretch draws a steady mix of wellness, professional, and neighborhood-serving tenants, with creek and trail access and quick connectivity to downtown Denver and the foothills.

Property listed by MRE Commercial | Tenant represented by Montana Rae while practicing at Henry Group Real Estate

 

Searching for a commercial property?

Call to discuss your requirements.


 

Montana Rae,

Principal

CALLTEXTEMAIL

 

Previous
Previous

808-810 Santa Fe Drive, Denver, CO

Next
Next

300 Santa Fe Drive, Denver, CO